Ref
Busco
Tipo
En
Zona
Habitaciones
Baños
Características
Precio
Planta baja independiente a estrenar, Ciutadella de Menorca.
Precio de venta: 775.000 €
RESERVADO
Chalet | Ciutadella de Menorca - Centro
Referencia: 4839

Una propiedad excepcional, con una ubicación ideal, diseñada con materiales de alta calidad y una distribución muy cómoda. 

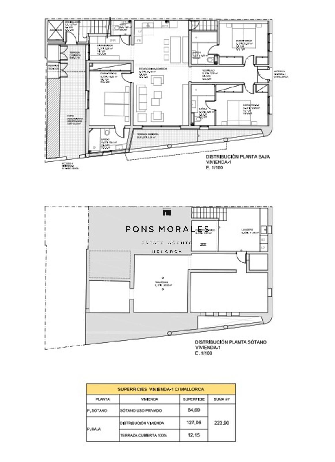
Luminoso salón-comedor con acceso a una encantadora terraza de 12m2, cocina totalmente equipada, zona de despensa y aseo. Dispone de tres dormitorios con armarios empotrados, todos ellos con baño en suite.

Además, ofrece un práctico sótano con lavadero, ideal para almacenamiento y espacio funcional.

Una magnífica propiedad que se compone con estilo, confort y comodidad.

Características:
Superficie construida 223,90 m2
Superficie parcela 127,06 m2
Habitaciones 3
Baños 4
Cocina Amueblada
Calefacción Central
Trastero
Estado A estrenar
Aire acondicionado
Calificación Energética En trámite
Luz
Agua
Situación aproximada
Inmuebles relacionados:
 

Chalet en zona residencial de Cala Blanca, Ciutadella

850.000 €
Ref.4393  181 m2  4  3
 

Villa privada en Calan Blanes, Ciutadella de Menorca.

830.000 €
Ref.4633  287 m2  4  3
 

Villa con licencia turística cerca de Ciutadella de Menorca.

825.000 €
Ref.4673  225 m2  4  3

INMOBILIARIA PONS MORALES

c/ Mayor del Borne, 7 Ciutadella de Menorca morales@ponsmorales.com (+34) 971384225