Ref.
Search
Property Type
In
Location
Rooms
Bathrooms
Features
Price
Brand-new home in the heart of Ciutadella de Menorca.
Sale price: 825,000 €
EXCLUSIVE
Chalet | Ciutadella de Menorca - Centro
Reference: 4838

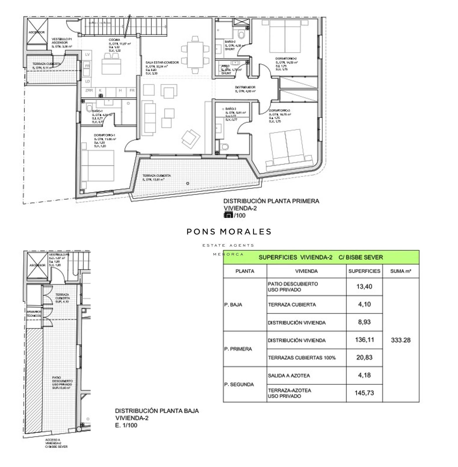
This brand-new townhouse is located in a prime area of Ciutadella, just a few meters from the Contramurada and Plaza de los Pinos. A newly built property featuring high-quality materials and great appeal.

Access is via a private patio that leads to the home, located on the first floor. The property stands out for its brightness and very comfortable layout: a spacious living–dining room with access to a charming terrace, a fully equipped kitchen, a guest toilet, and three double bedrooms with built-in wardrobes, each with its own en-suite bathroom.

The building has an independent entrance and pre-installation for a private lift, offering an excellent level of comfort.

On the second floor, an impressive 145 m² terrace provides endless possibilities—from creating a pleasant chill-out area to, if desired, considering the option of further construction.

A property that stands out for its style, comfort, and versatility, ideal for those seeking a new, bright, and move-in-ready home in one of the most sought-after areas of Ciutadella.

Features:
Built-up area 1,874.55 ft2
Plot surface 1,568.64 ft2
Rooms 3
Bathrooms 4
Furnished Kitchen Yes
Heating Central
Condition Brand new
Lift Yes
Air conditioning Yes
Energy Rating In process
Electricity Yes
Water Yes
Approximate situation
Inmuebles relacionados:
NEW
 

Comfortable country house in Son Morell, Ciutadella de Menorca

670,000 €
Ref.4846  2,260 ft2  4  2
 

Premises located in Camí de Maó

Request
Ref.3041  5,673 ft2

INMOBILIARIA PONS MORALES

c/ Mayor del Borne, 7 Ciutadella de Menorca morales@ponsmorales.com (+34) 971384225